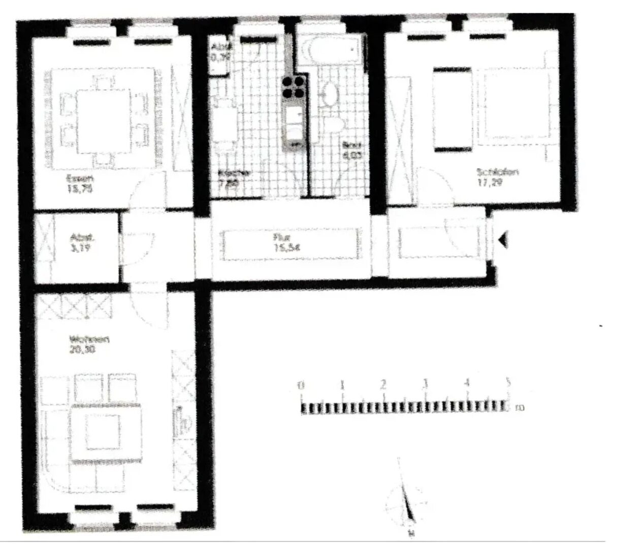
Diese exklusive 3-Zimmer-Wohnung mit einer Wohnfläche von 86 m² vereint den unverwechselbaren Charme eines historischen Altbaus mit dem zeitgemäßen Komfort moderner Ausstattung. Sie befindet sich in einem der repräsentativen Gebäude der Karl-Marx-Allee, entworfen vom renommierten Architekten Hermann Henselmann - ein eindrucksvolles Zeugnis architektonischer Meisterleistung und historischer Bedeutung.
Die Wohnung überzeugt durch ein großzügiges Raumangebot, das optimal auf die Ansprüche moderner Familien abgestimmt ist. Der weitläufige Wohnbereich lädt zum Verweilen ein, während die hochwertige Einbauküche mit Markengeräten und das geschmackvoll gestaltete Badezimmer mit Badewanne den historischen Charakter stilvoll ergänzen....
Ein besonderes Ausstattungsmerkmal ist die begehbare Ankleide. Die barrierefreie Ausführung sowie die umfassende Sanierung im Jahr 2016 - inklusive moderner Elektroinstallation und zeitgemäßer Netzwerktechnologie - gewährleisten höchsten Wohnkomfort und eine zukunftssichere Lebensqualität.




















